
Navštíveno 4962x

Zdravím,
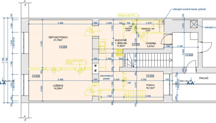
potřeboval bych nějaký praktický rady co a jak předělat v projektu.Vím určitě že v ložnici chci šatnu.která se tam nechá dodělat a v kuchyni je špajz.
Moc dík za rady a postřehy

04.05.2014, 13:36 |
Pepíno_Honda | Upraveno: 2014-05-04 13:37:22
tak pokud nevidíme původní projekt, tak nelze dát žádné rady na jeho předělávky....
tak už nic, předtím to zde nebylo :)
nějak dlouho se to načítalo :-)
máš malé zádveří, nemáš tam místo na pořádné úložné skříně, botníky, šatnu, věšáky. U vstupu bych si nechal udělal závětří, u záchodu je vhodné už dneska mít i bidet a přijde mi, že máš malo prosklené plochy na oslunění pokojů vlevo. V principu je největší problém s tím vstupem. Tam to v téhle dispozici za provozu budete proklínat
Only_One - dík,s tím máš nejspíš pravdu a bude s eto muset poupravit
proslunění vpravo jsem samozřejmě myslel...
chtělo by to někam nahrát ve větším a dát sem link, okna v obýváku mi přijdou divně rozmístněné, chodba mi přijde úzká, kolik má, tak 120 cm? Tam když se potkají 2 lidi, nic moc místa. V obýváku mi přijde zbytečně moc "volného" nevyužitého místa, že tam bude, jak jsou světové strany?
Západ bude vlevo,vpravo se ještě oka budou muset přidat,to je fakt.
Ta chodba vypada podle kot ještě menší než 120cm
Mno vzhledem k tomu, že zrovna začínáme stavět a máme doprojektováno musím říct, že tenhle projekt nic moc. I když já to mám na 2 patra a ještě do svahu, takže chápu, že jsme jinde.
Úložné prostory nemáš skoro žádné, jaká bude střecha, půda? Garáž?
Chodby pekelně dlouhé a úzké. To už bych raději zrušil či přepracoval ten předěl kuchyně/chodba. Jinak nevím, kolik je vás v rodině, počet dětí atd.
Ale já jsem třeba dal 2 dětské pokoje vedle sebe a mezi ně dal velké šoupačky. Dá se z nich tak udělat jeden pokoj/herna pro 2 malé děti, později je oddělit na samostatné pokoje.
Těžko takhle soudit podle obrázku, když nevíme více. Ale určitě děláš dobře, že se ptáš, protože máš ještě čas vše doladit. Mě to trvalo také poměrně dlouho s dosti práce architekta, projektanta, než se odladilo na finální fázi.
já jsem v podobný fázi jako cezetko s tím, že podáváme žádost o ÚR a SP. celej proces návrhu RD nám zabral 6měsíců, protože jsme pořád něco měnili, upřesňovali apod, že jsme v určitý fázi řekli stop a všechno co bylo nakreslený hodili do koše a začali od nuly. někdy je to nejlepší východisko než dělat z původního záměru hybrid.
tady mi přijde chodba tak 90cm podle dveří na WC, což je tragicky málo. vůbec celá koncepce chodby zabírá poměrně dost prostoru. velikost obýváku a kuchyně je z mýho pohledu OK, prostor kde tráví rodina většinu času je dobrý mít velkej. co by mě štvalo je při vstupu hned uhýbat židlím a stolu. taky sedačka uprostřed nic moc, ale to je asi jen první nástřel.
oproti velikosti obýváku mi přijdou tragicky malý pokojíky, kam se v budoucnu postel š.160cm těžko dá. v tomhle prostoru mi třeba pracovna přijde zbytečnej luxus, chybí mi tam nějaká skladová místnost a samozřejmě všechno co psali kluci nade mnou.
I podle mě tragickej projekt viz. všechny připomínky nahoře + bych doplnil kde bude TV? Koukat proti oknu je nesmysl a mít jí v rohu ještě větší, protože si k tomu nikdy nevytvoříš pořádné stereo.
BTW: Kde v kuchyni je ten špajz a kde je místo na ledničku a kde na komín (místo kde se dává horkovzdušná trouba/mikrovlnka/kávovar?

04.05.2014, 21:43 |
AR Tu příčku obývák/chodba bych asi zrušil, jelikož to chodbu máš fakt úzkou. To zádveří jak už máš uvedeno výše, promysli zda se ti tam vejde aspoň nějaký normální botník. Technická místnost, máš rozvrženo co tam bude? Připadá mi docela velká, pokud to nebudeš mít i jako hlavní sklad. S krbem nepočítáš?
Luke_288: řešíš povolení přes územko? Taky nás to asi čeká :(
spojený územní a stavební řízení. jinak to neumím.

04.05.2014, 22:08 |
AR jj vím, taky budem muset jelikož je problém sehnat podpisy sousedů
OT: jak to s tim souvisí? Souhlas sousedu je pouze jednim z mnoha podkladu pro tyhle rizeni a kdyz je nemas tak je urad proste obesle, dostanou lhuty pro seznameni se s projektem, vyjadrenim, dosravenim se na mistni setreni nebo jednani na urad, pokud nic z toho neudelaj, bere se ze souhlasi a rizeni normalne pokracuje dal (nebo uz jsem zazil ze se to vyvesilo na uredni desku, kdyz sousedi nebyli k zastizeni)
Podpisy sousedu te uzemka ani stavebka nezbavi, jedine snad ze by sel ten dum postavit na ohlasku, ale to si nejsem jistej, kazdej si to vysvetluje jinak.
já mám ohlášku, tam právě podpisy potřebuješ. Ohláška jde do 150m2. Ale hodně záleží na stavebním úřadě.

05.05.2014, 06:17 |
Only_One | Upraveno: 2014-05-05 06:17:58
jinak je i pecka ty vstupní dveře a francouzské okno otevírané na sraz s kolmou stěnou i oknem.. velice zajímavej detail bez ostění konstrukcí... minimálně ti to nedovolí otevřít ty dveře na 90° a to miniokýnko vedle dveří? Když si připočteč nějakej rám okolo, tak ti prosklené plochy zbyde zcela zanedbatelné množství a ty dveře budou z venku vypadat hrozně.
Každopádně už to tady zaznělo, nemá smysl to neříct znova. Najdi si projektanta co má cit a navrhne ti tu dispozici lépe a kvalitněji. Tohle by bylo vhodné jako zrekonstruovanej panelákovej byt, kde nemáš možnosti, ale určitě né nový rodinný domek. Minimálně si udělej 3D vizualizaci a projdi si to, uvidíš, jak depresivně ti bude ta chodba připadat a jak je ta dispozice nevyvážená z hlediska celého objektu.
chtěl jsem napsat, ze ten vstup na mě působí nějak divně, stísněně, ale pak jsem se podival, ze ja ho mam naprojektovany skoro stejne, tak raději nepisu nic :-)
Jen ta chodba , uzka, dlouha. Takovy tunel, na druhou stranu je to jen chodba :-)
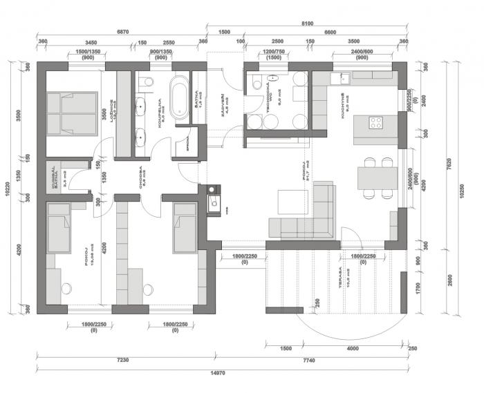
Kdyby tě nahodou treba něco inspirovalo, posilam muj.


05.05.2014, 07:44 |
AR Luke_288: no tak že když seženeš sousedy tak můžeš jet na ohlášku a seš v tom za cca 60dnů vs 90dnů + případné námitky a předělávačky
Inside: ad kuchyně a obývak, tady si to zkus nakreslit v nějakém plánovači, ono je sice fajn že tam nějak práskneš kuchyň ale jakmile ji pak bude řešit funkčně tak zjistíš že musíš kupu věcí předělat. Pokud to chceš dělat sám tak zkusi ikea home planer na kuchyň či turbo floor plan co nabízí oresi. Nakreslíš a hned vidíš.
Nečetl jsem všechny příspěvky, ale po prvním mrknutí na půdorys za svoji osobu říkám - NIKDY never again kuchyň spojená s obývákem. Mám to tak a je to největší průser bydlení, jaký jsem v živoě ky viděl. Důvody proti tomuto řešení uvádím násleudjící:
- trvalý pohled z obýváku na "bordel" v kuchyni, ať nádobí, různíé kuchyňské krámy
- smrad z vaření a pečení jde do pokoje, kde je radost přivést návštěvu a čuchat smrad ze zelí
- nikdy neozvučís (jsem hifista, takže to je pro mě zásadní argument)
- mizerná regulace teploty ve spojeném prostoru (například peče se, jde trouba, regulace je prostorová od čidla v pokoji=netopí zbytek baráku)
- není to útelná místnost - nemám rád ratejny o 60m2, ale útulný malý obýváček kolem 25-30m2
Tohle jhsem řešil bohužel až dodatečně, protože v dobách, když jsem si nechal mpostavit barák na klíč, jsem neměl vůbec představy, co může spojený prostor obsáhnout a jaké jsou jeho důsledky. Proto jsem řešil aspoŇ příčku. Dnes vím, že můj další dům bude vypadat zcela jinak a nechápu, proč bych měl po příchodu z práce, kde chodím á i manželka na obědy, čumět do kuchyně.
Další zcela zásadní věc - u kuchyně musí být samostatná špajzka situovaná k severu. V ní musí být prostor pro mražák(y), lednice je vestavba v kuchyni.Plocha aspoň 4m2.
Naopak chválím oddělneé WC od koupelny.
my co doma máme trvale bordel i v obýváku spojené místnosti s kuchyní nevadí :-)
co jsme ted v bytě, tak máme 31m2 obejvák, kuchyň i jídelnu dohromady a co mě teda sere uplně nejvíc nejsou žádný smrady nebo bordel (s prckem bezpředmětný), ale hluk z vaření, třískání s nádobím. na druhou stranu uplně stavebně oddělená kuchyň taky asi není uplně optimální- přijede návštěva, sedne do obejváku, ženská připravuje nějaký občerstvení a je od všech separovaná.
jinak samo že regulovat barák termostatem v těhle místech je masakr a hloupost.
se spíží souhlas, mrazák bych dal jinam, prtž topí což se do spíže moc nehodí.
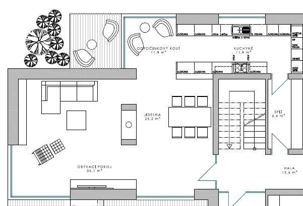
my vyřešili obejvák vs kuchyň nakonec takhle


05.05.2014, 17:13 |
Cenda Luke > můžeš hodit celej půdorys baráku?
Mj. trochu nechápu dnešní módu lézt rovnou z venčí nejdřív do obýváku a odtud teprv dál - to by mě neskutečně sralo, aby mi pořád někdo obývákem pendloval a vim, jak nerad jsem přes obývák do jednoho z pokojů u rodičů vodil návštěvu.
No takže všem děkuji,zítra jdu za projektantem a většinu věcí mu tam povím.Jinak zatím stavím sám takže ještě není jasný kolik tam bude lidí.Zatím bude jako uložný prostor pracovna a střecha bude rovná.
Rozvržení obýváku se bude předělávat protože tam určitě budou krbovky a ta část co je jakoby mimo barak se trochu cukne vlevo aby tam znikl takovej schod.

05.05.2014, 23:10 |
crestik | Upraveno: 2014-05-05 23:14:45
...já dělám jen rekonstrukci interiéru, ale jestli projektant bude měnit projekt až po tom, co mu někdo donese námitky od ostatních, tak bych ho asi vyměnil. Nevím, co je hotovo, nebo se čeká na finální verzi a pak začne stavět, nebo zůstanou obvodové zdi...ale asi bych to celkem poměnil, no...jak tu padlo, tak určitě vstupní chodbu větší, mě se nelíbí třeba ta dálka mezi ložnice-koupelna/wc. Jinak já mám v patře základní kostru hodně podobnou (vlastně je to skoro stejné :-), tu úzkou chodbu a rozprsk do místností, ale situování bych řekl trošku logičtější.
co člověk to názor, někdo postaví za 2 mil, někdo za 6 mil - těžko radit .....
zredukovat pricky (ta chodba je hrozna, bude tam tma a same dvere) a dvere (co nejvic pouzit posuvne nebo zadne)
Blbost - dveře nechat kvůli topení.uděláš ratejnu a budš topit jak blázen na chodby a bůhvíkám.Navíc bez dveří budeš mít dozvuk jakko v montážní hale a v kuchyni ohluchneš - a nebo začneš o víkendu chodit na jídlo do hospody:-)))
Posuvné dveře neřeší hluk - mám doma.
jasne, vsechno pozavirat, okna co nejmensi, hlavne aby se neprotopilo... a na zed pritlouct koberce jak na Ukrajine...

06.05.2014, 15:15 |
Cenda CV: zas to nepřeháněj. Mě osobně by absence dveří taky vadila a šoupačky hluk neřeší.
Ad obyvak + kuchyn, za me naopak urcite ano, mam rad otevrene, vzdusne prostory, aktualne mam obyvak s kk 80m2 a zacinam taky pokukovat po baracku a bojim se ze takhle veliky prostor uz nebude:( smrad z vareni me netrapi, co se u nas vari vetsinou voni:)
Martyn: zelí vonět jsem ještě nepotkal:-))) Jinak v Nižnym Novgorodě je k prodeji nádražní hala:-) To by se ti mohlo líbit.

07.05.2014, 09:36 |
M.a.R.i | Upraveno: 2014-05-07 09:44:41
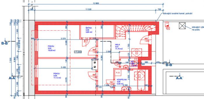
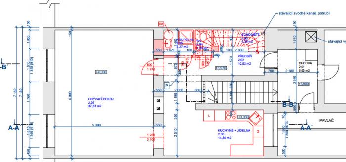
Tak by mě také zajímal Váš názor. Jedná se o cca 120let starý rodinný dům, přízemí je ještě mnohem starší, všude tlustý zdi, brutálně vysoký stropy. V domě 3byty a 1obchod. Já užívám 1byt, prarodiče 2.
Budu rekonstruovat byt s tím, že budu dělat i podkroví. Bohužel se dá použít pouze polovina střechy. 2.půlka je strašně nízká a musel by se upravovat krov a dělat nový stropy a rekonstrukce by se hodně prodražila.
Počítám s rozpočtem do 600000Kč s tím, že sádrokartonářské práce včetně materiálu budu mít zdarma.
Byt bude mít samostatný plynový kotel, který budu chtít umístit na půdu, pokud to půjde... Nyní je na celý dům jeden plynový kotel. To vše bude doplněno uzavřeným krbem s výměníkem tepla. Všude se budou snížovat stropy sádrošem.
Voda by se ohřívala nejspíš karmou a v kuchyni by byl průtokový ohřívač vody, aby zabezpečil teplou vodu než dorazí od karmy.
Podlahové topení by bylo max v koutu v kuchyni, na záchodech a v koupelnách. Všude bych chtěl dřevěnné podlahy. Koukal jsem, že se dají sehnat i za 500Kč m2. Ale zatím jsem se moc po tom nepídil, tak netuším, jestli za ty peníze to bude vůbec k něčemu. Ale to není důležité....
Původní stav:

1.patro

Podkroví


07.05.2014, 09:40 |
M.a.R.i | Upraveno: 2014-05-07 09:41:05
Původně jsem chtěl 2 dětské pokoje, ale obývací pokoj se mi zdál příliš malý, tak jsem z toho udělal jednu velkou místnost (v novém projektu se počítalo, že se prohodí obývací pokoj s ložnicí a šoupne se s příčkou. +/- by byl obývací pokoj stejně velký jako teď.
Kdyby byla potřeba 2.dětského pokoje, tak bych ložnici udělal v 2.bytě. 2.byt by se o ložnici zmenšil a kdyby se přišlo po schodech do 1.patra, tak by zde byla příčka, aby celý byt byl jako jeden celek. Vlastně by se udělala malá vstupní hala, nalevo by byly schody na půdu a napravo vstup do ložnice. Vstup do 2.bytu by byl z Pavlače. Doufám, že je to srozumitelné :).
Jinak nějaké předělávání zvenka nepřipadá v úvahu kvůli pamatkářům. Budu rád, když mi dovolí vykíř do ulice...
"Byt bude mít samostatný plynový kotel, který budu chtít umístit na půdu, pokud to půjde... "
Záleží pokud Ti památkáři dovolí střešní hlavici výfuk spalin/sání vzduchu. Pokud ne, je nutno použít stávající komínové těleso jako prostor pro vedení systémového potrubí. A na půdě v zimě nesmí mrznout, že :)
"Nyní je na celý dům jeden plynový kotel. To vše bude doplněno uzavřeným krbem s výměníkem tepla. "
Pamatuj, že k tomu krbu potřebuješ někam umístit akumulační nádrž, podle jeho výkonu patřičné litráže. To je nárok jednak na prostor, druhak v případě podkroví a půd, to bývá kolikrát i oříšek pro statika, aby to vůbec bylo kam postavit.
"Voda by se ohřívala nejspíš karmou a v kuchyni by byl průtokový ohřívač vody, aby zabezpečil teplou vodu než dorazí od karmy."
Nesmysl, ekonomická sebevražda co se týká provozu, nutnost rezervovat karmě další komín (ten dále pravidelně revidovat, atd), nutnost řešit přívod vzduchu a odvětrání, atd.... Pokud bude zdrojem plynový kotel doplněný krbem, nejlevnější, nejspolehlivější a nejúčinnější výroba teplé vody je zásobníkový (akumulační) ohřívač patřičného objemu. Může být separé u plynového kotle, může být klidně vtipně vestavěn i do akumulační nádrže krbu, jde všechno. Ale karma.... a průtokáče co žerou 4 kW a vodu ohřejí jen když z nich teče 0,5 cm čůrkem.... to je řešení hodné ukrajinské ubytovny...
Diky Radku za poznatky :). Dam si na to bacha az pujdu za Topenarem.
Asi jsem to rekl blbe, ne karmu, ale kotel co by rovnou ohrival i vodu ve vodovodu.
S tim prutokacem jsem to myslel tak, ze bych chtel mit teplou vodu hned po otevreni kohoutku. Tudiz by prutokac zaplnil cas, nez by se dopravila tepla voda od bojleru nebo karmy (...nebo kotel teda :) )
A k tomu vymeniku. Krb s vymenikem by ohrival pouze byt a ne cely dum, kdyz by se mi nechtelo zapinat kotel. Prd tomu rozumim jak jsem psal. Naivne jsem myslel, ze staci do komina dat vymenik, kterym bude protykat voda v topeni.
- Průtokový kotel = "karma" = špatně - ekonomika, poruchovost, náklady.
- Průtokáč na elektriku aby ohřál 4 kW elektriku pro 3 dcl vody než doteče od boileru - hovadina. Pokud je to daleko od kotle, tak to řeší cirkulace TUV s čerpadlem.
- Výměník na kouřovodu krbu - podchlazování spalin, rosení v komíně - hniloba, špatný tah komína, problémy s dosažením výkonu. I přes prospektové vychvalování blbost. Jedinné výměníky do kouřové cesty co fungují a neohrožují zařízení, jsou ty teplovzdušé, nikoli vodní.....
Ty teplovzdusne vymeniky jsem mel puvodne v planu, ale nekdo mi doporucil ten vodni vymenik. Koukam, ze ty teplovzdusny stoji par Kc. Komin je uprostred bytu, tak by dokazal vyhrat velkou cast bytu.
Treba ten krb nebudu pouzivat vubec. Puvodne jsem ho chtel jenom jako relax do obyvaku.
Jeste jednou diky za radu :)
A jeste jeden dotaz :). Jak je to prosimte s otevrenym krbem? Co se tyce schopnosti vytapeni? Vsude se doslycham, ze je to naprd.
Ale jak rikam, jeste jsem nebyl u zadnyho profika.
Otevřený krb je super, když si doma chceš opéct buřťík na ohni. Ale jinak účinnost je mizerná, většina tepla uteče komínem. V tomhle se ti nevyplatí experimentovat. Na trhu máš velké množství oveřených výrobků. Koukej se je účinnost spotřebiče a schopnost výhřevu místnosti kde to bude osazené. Pokud budeš mít spotřebič předimenzovanej, je to špatně, budeš mít vedro a vložka pojede na minimální výkon což pro ní není dobré a naopak, pokud bude poddimenzovaná, budeš mít snahu ji přetápět což ji taky nesvědčí. Větší problémy s přetápěním mají vzduchové vložky bez vodních výměníků, ale i tak je nutné mít spotřebič vhodný do daného prostoru. Ať vložku krbu nebo krbovky. Tohle by tě měl odborně poradit někdo, kdo se tím živý. Já jsem dělal doma krb 2x... bohužel sem si myslel že na to vyzraju, ale opak byl pravdou a pozor na poláky, u nich totiž snese papír všechno, ale realita je jiná
Kdyby mel obejvak 80m2 a vic, tak by mel otevrenej krb asi smysl, aby to vypadalo dobre. A to jeste pouze za podminky, ze v nem nebudes topit.
Na tohle tema jsem se bavil s krbarem, nejak jsme se na to dostali a rikal, ze to delal 2x a povidal, ze neni problem s kourem, ohnem, tahem, ale je to proste cejtit, kdyz ohen dohori. Takovej ten uzenej oder popela.
Za mě: Obývák spojený s kuchyní - vadilo by mi v to spojení - mám obývák (26 m2 a kuchyň 15 m 2 a spojené jsou průchodem o šířce 130 cm. Už teď uvažuju o šoupačkách a řešení, jak je tam dát - sere mě to neskutečně.
Chodba - pokud budou prosklené dveře, zas taková tma tam nebude, ale minimálně bych uvažoval o jiném dispozičním řešení toho vstupu - nebudeš mít botník, vestavěnou skříň, odkapávač na boty a hlavně pokud plánuješ děti (nevím , jak na tom jsi :-)) nemáš už teď kam dát kočár (pro některý blbost, ale mě sere kočár v chodbě už přes rok :oD)
Otevřenej krb - má to kamarád a jeho žena je z toho úplně šílená (furt bordel) a že by to nějak extra topilo, to se taky říct nedá (nevím, jak to má technicky řešený).
Já měl kliku, že za linkou je zeď oddělující schodiště od kuchyně a tím pádem jsem si vytvořil špajz pod schody (musel jsem posunout jednu příčku oproti projektu).
je pravda, že mám pokoje v podkroví (musel jsem stavět dle regulí CHKO), takže mě úplně netížilo rozdělení zón v domě.