Auto HI-FI Club CZ

autohifi,auto hi-fi,auto hifi,autohificlub,auto hi-fi club,club, klub,fórum,autorádio,autozesilovač,autorádio cd,autorádio mp3,autorádio dvd, tuning,srazy,tuningshow,klub,emma,dbdrag,tuning,autotuning,carstyling, tlumeni, Alpine,octavia,Brax,Denon,Clarion,Pioneer,Sony,panasonic,Helix, Dynamat,dego,Hertz,Audison,Fusion,McIntosh,Focal,Rockford Fosgate,Dynaudio,JBL,xenony,becker,jvc,kenwood,ground zero,dietz,morel doorboardy ,zapojeni,felicia,pioneer,peugeot,zastavba,audio,306,repro,golf,instalace,dls,4x100,FELICIE,morpheus,helix,audi(forum)

o

Forum > Bazar - ostatní > P. Byt StČ

 o Navštíveno 3247x o
o 15.12.2012, 17:27 | JA
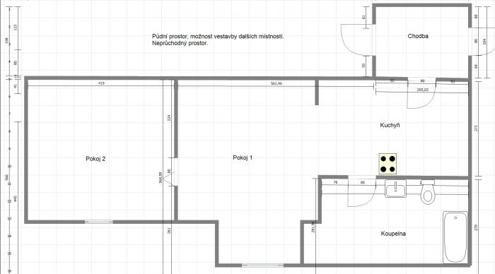
Tak je k prodeji byt 76m2.Podílové vlastnictví v přípravě a sondování je družstvo. Je to v Kouřimi, ulice Ruská.Dům je u fotbalového hřiště, hned u Kouřimského skanzenu. Já tam bydlím 40 let a nikam se nechystám.Cca 2000 obyvatel, školy školky, doktoři.Supr okolí na couračky se psem.Velmi staré historické město. Elektro a ostatní rozvody po GO.Nová plastová okna.Komín a krbovky plně funkční s revizí komína.Za bytem je další prostor který je vzhledem k vytvoření chodby neprůchodný a tudíž možnost rozšíření.Zatím jsou tam přímotopy.Plyn je dole na domě.Okamžitě k nastěhování. Cena pevná 500tis.
Jirka 776 222 261

foto k příspěvku  od JA



o 15.12.2012, 17:27 | JA

foto k příspěvku  od JA

o 15.12.2012, 17:27 | JA

foto k příspěvku  od JA

o 15.12.2012, 17:28 | JA

foto k příspěvku  od JA

o 15.12.2012, 17:28 | JA

foto k příspěvku  od JA

o 15.12.2012, 17:29 | JA

foto k příspěvku  od JA

o 15.12.2012, 17:30 | JA
jo je to 2np a vše tam zůstává, kuchyň dělal majitel přede mnou, je to truhlář.

foto k příspěvku  od JA

o 15.12.2012, 17:30 | JA

foto k příspěvku  od JA

o 15.12.2012, 17:32 | JA
Takže až nahoře...v koupelně je střešní Cu Velux.Okna jsou na jih
o 15.12.2012, 17:33 | JA

foto k příspěvku  od JA

o 15.12.2012, 17:36 | JA
[ Link ]

jo golf je v Molitorově cca 1km :-))kdyby náhodou...
o 15.12.2012, 17:48 | JA | Upraveno: 2012-12-15 17:51:20
Ještě pro info odjakživa dělám v Praze a těch slabejch 50km je v pohodě.

Co se týká platby tak stavebko na to nejde. Nicméně třeba je Era půjčka, přímo na podílové vlastnictví.
o 17.12.2012, 17:33 | Kesam
500 pěkná cenofka když si vezmu co sem dával za 3 plus 1 v CB.
o  Zpět  o  Nahoru
o
 

Vložit nový příspěvek do fóra


  Pro vložení příspěvku musíte být přihlášen/a.
Stránka vygenerována za 0.3382 sekund.