Auto HI-FI Club CZ

autohifi,auto hi-fi,auto hifi,autohificlub,auto hi-fi club,club, klub,fórum,autorádio,autozesilovač,autorádio cd,autorádio mp3,autorádio dvd, tuning,srazy,tuningshow,klub,emma,dbdrag,tuning,autotuning,carstyling, tlumeni, Alpine,octavia,Brax,Denon,Clarion,Pioneer,Sony,panasonic,Helix, Dynamat,dego,Hertz,Audison,Fusion,McIntosh,Focal,Rockford Fosgate,Dynaudio,JBL,xenony,becker,jvc,kenwood,ground zero,dietz,morel doorboardy ,zapojeni,felicia,pioneer,peugeot,zastavba,audio,306,repro,golf,instalace,dls,4x100,FELICIE,morpheus,helix,audi(forum)

o

Forum > Ostatní > Stavba po xté (pudorys+strecha)

 o Navštíveno 1699x o
o 09.03.2014, 00:16 | Antonio
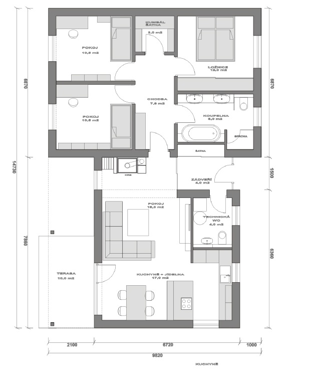
Víc hlav, víc ví. Proto se poptám i tady. V současné době ladím projekt domu a čeká mě rozhodnutí, jakou střechou přikrýt dům.
Původní varianta měla být plochá, zelená střecha. Teď ještě padá v úvahu pultovka, popr 2 pultovky, každá s jiným sklonem. Poslední možnost klasika vaznikovka valba.

Co by jste doporučili, popř jestli máte nějakou zkušenost, o kterou se chcete podelit, budu rad.

Popř nějaký tip k půdorysu? oproti této variantě bude ve finale zvetsena část s detskyma pokojema, finalni velikost bude 12,5m2.

foto k příspěvku  od Antonio



o 09.03.2014, 10:43 | AR
jak už tady bylo zmíněno více úrovňová pultovka sice vypadá efektně ale přináší sebou hodně problémů.
o  Zpět  o  Nahoru
o
 

Vložit nový příspěvek do fóra


  Pro vložení příspěvku musíte být přihlášen/a.
Stránka vygenerována za 0.4719 sekund.